Villa a schiera in vendita

Monte San Pietro, Via Lavino - Badia
€ 268.000
3 locali 3 locali
145 Mq 145 Mq
2 bagni 2 bagni

Villa a schiera in vendita

Monte San Pietro, Via Lavino - Badia

Descrizione annuncio

BADIA:

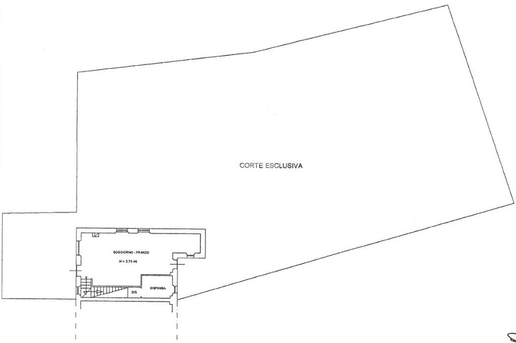
proponiamo in vendita porzione di trifamiliare di testa, con esposizione est-sud-ovest, di recente costruzione con vista panoramica immersa nel verde e nella tranquillità assoluta.
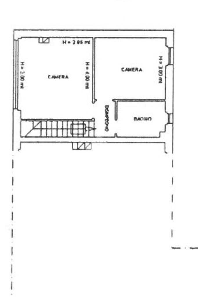
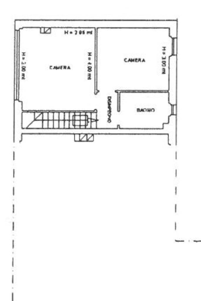
L’abitazione, si sviluppa su 2 piani, piano terra, ampio soggiorno con camino e cucina a vista, e bagno/dispensa, al piano primo 2 camere da letto matrimoniali (di cui una di 24 mq) e ulteriore bagno.
Al piano semiinterrato trovano posto il garage e un vuoto tecnico non accessibile.
L’immobile, originariamente inizi ‘900 è stato completamente abbattuto e ricostruito nel 2010, disponendo così delle tecnologie odierne, riscaldamento a pavimento, pannelli solari termici, predisposizione aria condizionata, infissi in legno doppi vetri con inferriate e zanzariere.
La proprietà è completa di circa 500mq di terreno completamente recintato (in parte pianeggiante e in parte collinare).
L’immobile è pronto all’uso, non necessita di alcuna ristrutturazione e volendo può essere ceduto parte dell’arredamento attualmente presente.
Sono compresi due posti auto privati.

Chiama e fissa un appuntamento!
L'incaricato di zona risponde al 392 9283363 !!!

Ogni agenzia ha un proprio titolare ed è autonoma - Le presenti informazioni non costituiscono elemento contrattuale.

Mostra tutto

Nelle vicinanze

Trasporto pubblico Trasporto pubblico
Trasporto pubblico
1,9 Km
Ristoranti Ristoranti
Osteria Nuova del Pilastrino
1,3 Km
Vecchia Osteria di Ponzano
2,2 Km
Mostra tutto

Caratteristiche

Rif.:
61154317
Piano:
2 di 2 (Piano su più livelli)
Box:
1
Posti auto:
2
Camere da letto:
2
Arredamento:
Assente
Mostra tutto
Prezzo Prezzo
€ 268.000
Rata mutuo Rata mutuo
€ 1.270 / mese
Spese annue Spese annue
€ 0
Proponi il tuo prezzoProponi il tuo prezzo

Classe Energetica

C
C
C
C
C
C
C
C
C
EP globale non rinnovabile:
92.25 kW h/m² anno
EP invernale del fabbricato:
EP estiva del fabbricato:
Anno di costruzione:
2010
Riscaldamento:
Autonomo
Tipo impianto:
A pavimento
Tipo alimentazione:
GPL

Ti interessa visionare l'immobile?

Fissa un appuntamento  Fissa un appuntamento

Richiedi informazioni

Clicca su Leggi per aprire l'informativa
* Questi campi sono obbligatori

Calcola il tuo mutuo

Semplice e senza impegno
Anticipo

( % )
Mutuo

( % )

pochi semplici passi

inserisci i tuoi dati
Questionario completato
Grazie per aver richiesto un appuntamento senza impegno con un nostro Consulente del Credito e Assicurativo.

Hai inserito correttamente tutti i dati necessari e a breve riceverai una e-mail con un link da convalidare per inviare i tuoi dati.
Affiliato
Studio Calderino Srlu
Via Lavino, 2/c 40050 Monte San Pietro (BO)

Il nostro staff


  • Giulio Bartolini
    Affiliato

  • Andrea Gasparoni
    Coordinatrice
Via Lavino, 2/c 40050 Monte San Pietro (BO)
Zona: Calderino-Tutto il territorio di Monte San Pietro-Savigno
Mostra su mappa
Affiliato
Studio Calderino Srlu
Via Lavino, 2/c 40050 Monte San Pietro (BO)

2026 Tecnocasa Franchising S.p.A. - P. IVA 08365160152 - Via Monte Bianco 60/A 20089 Rozzano (MI). Ogni agenzia ha un proprio titolare ed è autonoma. Privacy policy | Policy utilizzo | Cookie policy