Porzione di bifamiliare in vendita

Monte San Pietro, Via Landa - Ca' Di Dio
€ 280.000
4 locali 4 locali
131 Mq 131 Mq
2 bagni 2 bagni

Porzione di bifamiliare in vendita

Monte San Pietro, Via Landa - Ca' Di Dio

Descrizione annuncio

CALDERINO

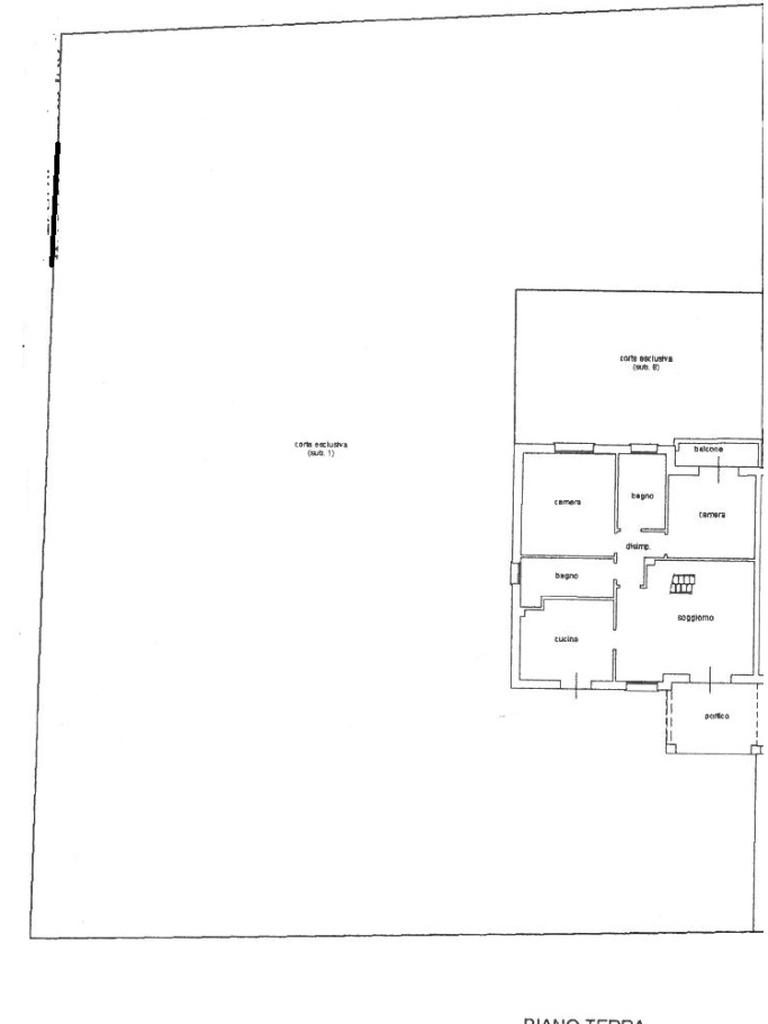
a pochi km da Ponterivabella, lungo la via landa, proponiamo in vendita splendida porzione di villa bifamiliare, esternamente in pietra a vista, con ampio giardino privato pianeggiante.
L’abitazione, tutta su un piano, vede l’ingresso sul soggiorno, una cucina abitabile, 2 camere e 2 bagni.
Una camera dispone di terrazzo privato mentre sia il soggiorno che la cucina sono dotate di portafinestra direttamente sul giardino.
Il sottotetto risulta completamente rifinito ed utilizzabile.
Al piano semiinterrato troviamo un’ ampio garage.
Tutta la proprietà è recintata,
con alberatura ad alto fusto e anche con alcune piante di frutta.
Gli infissi esterni sono in alluminio mentre quelli interni sono in legno, tutti dotati di inferriate apribili.
Nessuna spesa condominiale e volendo può essere ceduto parte o tutto dell’arredo attualmente presente.

Chiama e fissa un appuntamento!
L'incaricato di zona risponde al 392 9283363 !!!
Ogni agenzia ha un proprio titolare ed è autonoma - Le presenti informazioni non costituiscono elemento contrattuale.

Mostra tutto

Nelle vicinanze

Trasporto pubblico Trasporto pubblico
Zona Industriale Bacchello
Zona Industriale Bacchello
2,4 Km
Calderino Zona Industriale
Calderino Zona Industriale
2,6 Km
Negozi Negozi
L'Angolo della Spesa 2
3,0 Km
Bar Bar
Il Bettolino
3,0 Km
Ristoranti Ristoranti
RiSoldo
1,1 Km
Trattoria Gilberto
1,6 Km
Guidotti - Malcantone
1,9 Km
Mostra tutto

Caratteristiche

Rif.:
61182040
Piano:
1 di 1 (Piano terra con giardino)
Box:
1
Posti auto:
2
Camere da letto:
2
Arredamento:
Assente
Mostra tutto
Prezzo Prezzo
€ 280.000
Rata mutuo Rata mutuo
€ 1.308 / mese
Spese annue Spese annue
€ 120
Proponi il tuo prezzoProponi il tuo prezzo

Classe Energetica

F
F
F
F
F
F
F
F
F
EP globale non rinnovabile:
246.69 kW h/m² anno
EP estiva del fabbricato:
Anno di costruzione:
1990
Riscaldamento:
Autonomo
Tipo impianto:
A radiatori
Tipo alimentazione:
GPL

Ti interessa visionare l'immobile?

Fissa un appuntamento  Fissa un appuntamento

Richiedi informazioni

Clicca su Leggi per aprire l'informativa
* Questi campi sono obbligatori

Calcola il tuo mutuo

Semplice e senza impegno
Anticipo

( % )
Mutuo

( % )

pochi semplici passi

inserisci i tuoi dati
Questionario completato
Grazie per aver richiesto un appuntamento senza impegno con un nostro Consulente del Credito e Assicurativo.

Hai inserito correttamente tutti i dati necessari e a breve riceverai una e-mail con un link da convalidare per inviare i tuoi dati.
Affiliato
Studio Calderino Srlu
Via Lavino, 2/c 40050 Monte San Pietro (BO)

Il nostro staff


  • Giulio Bartolini
    Affiliato

  • Andrea Gasparoni
    Coordinatrice
Via Lavino, 2/c 40050 Monte San Pietro (BO)
Zona: Calderino-Tutto il territorio di Monte San Pietro-Savigno
Mostra su mappa
Affiliato
Studio Calderino Srlu
Via Lavino, 2/c 40050 Monte San Pietro (BO)

2026 Tecnocasa Franchising S.p.A. - P. IVA 08365160152 - Via Monte Bianco 60/A 20089 Rozzano (MI). Ogni agenzia ha un proprio titolare ed è autonoma. Privacy policy | Policy utilizzo | Cookie policy